Používame cookies

Súbory cookie a ďalšie technológie sledovania používame na zlepšenie vášho zážitku z prehliadania našich webových stránok, na to, aby sme vám zobrazovali prispôsobený obsah a cielené reklamy, na analýzu návštevnosti našich webových stránok a na pochopenie toho, odkiaľ naši návštevníci prichádzajú. Viac info

Na Predaj, Rodinný dom 240 m2, s 2 garážou, Hontianske Nemce

Popis nehnuteľnosti

Zdieľať na Facebooku

Na predaj: Viacgeneračný rodinný dom v krásnom prostredí Hontianskych Nemiec

Hľadáte priestranný dom pre viac generácií alebo investičnú príležitosť? Ponúkame na predaj trojpodlažný rodinný dom s veľkou dvojgarážou v malebnom prostredí údolia rieky Štiavnica, na okraji obce Hontianske Nemce.

Lokalita:

Hontianske Nemce sú situované v krásnej prírode údolia rieky Štiavnica, ktorá pramení v Štiavnických vrchoch. Táto obec je známa svojimi vinicami, vínnymi pivnicami a bohatou históriou. V obci nájdete kompletnú občiansku vybavenosť: ZŠ s MŠ, lekára, lekáreň, obchody, pizzeriu, reštaurácie a mnoho ďalšieho.

Vynikajúca dostupnosť:

Banská Štiavnica – 20 km

Krupina – 10 minút jazdy

Zvolen a Levice – cca 35 km

V okolí sa nachádza množstvo turistických trás, prírodné kúpanie v Štiavnických tajchoch, ako aj lyžiarske stredisko Salamandra Resort.

Rodinný dom:

Trojpodlažný rodinný dom s veľkorysou dispozíciou je v pôvodnom, ale veľmi dobrom stave.

Dispozícia:

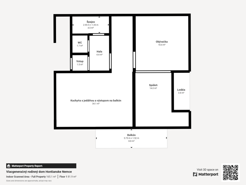
Prízemie:

Vstupná hala s WC, špajzou a schodiskom

Priestranná kuchyňa s jedálňou a vstupom na balkón (10 m²)

Obývacia izba prepojená so spálňou (možno oddeliť na samostatnú izbu)

Výstup na lodžiu (3 m²) s výhľadom na pozemok a rieku Štiavnica

Suterén:

Kotolňa s plynovým kotlom a kotlom na pevné palivo

Práčovňa, sklad, izba

Možnosť prerobenia na samostatný apartmán s vlastným vchodom na prenájom

Výstup do záhrady

Podkrovie:

3 izby

Oddelené WC a kúpeľňa

Šatník

Dva balkóny (každý cca 3 m²)

Garáž a ďalšie priestory:

Dvojgaráž (66 m²) s dvomi vstupnými bránami – ideálna na autodielňu alebo prestavbu na moderný industriálny apartmán

Suterén garáže: bývalé chlievy, skladovacie priestory

Podkrovie garáže: využívané ako sklad

Pozemok:

Celková výmera 1240 m² (evidované ako zastavaná plocha a nádvorie)

Tichá lokalita s krásnym výhľadom

Inžinierske siete:

Elektrina, plyn, voda

Odpad riešený žumpou

Cena:

Konečná cena zahŕňa odmenu sprostredkovateľa, právny servis a kompletné katastrálne vybavenie.

📞 V prípade záujmu o obhliadku nás neváhajte kontaktovať.

Tím Smart Reality Service

Vlastnosti

Status:
aktívne
Vlastníctvo:
osobné
Plocha pozemku:
1240 m2
Typ zeme:
terasovitá
Teritórium:
Intravilán
Šírka pozemku:
27 m
Dĺžka pozemku:
44 m
Úžitková plocha:
240 m2
Zastavaná plocha:
110 m2
Podlahová plocha:
220 m2
Skladová plocha:
100 m2
Stav:
pôvodný stav
Počet izieb:
6
Balkón:
áno
Loggia:
áno
Garáž:
áno
Pivnica:
áno
Špajza:
áno
Sklad:
áno
Dielňa:
áno
Rok výstavby:
1986
Počet poschodí od prízemia vyššie:
2
Celková plocha:
240 m2
Plocha balkóna:
10 m2
Počet balkónov:
1
Plocha loggie:
3 m2
Počet logií:
3
Počet garáží:
2
Plocha garáže:
66 m2
Pivnica plocha:
80 m2
Počet pivníc:
1
Orientácia:
juhovýchod
Inžinierske siete:
áno
Voda:
áno
Elektrika:
áno
Plyn:
áno
Voda - na pozemku:
áno
Elektrika - na pozemku - 230 V:
áno
Elektrika - na pozemku - 380 V:
áno
Plyn - na pozemku:
áno
Vykurovanie - centrálne:
áno
Internet:
áno
Satelit:
áno

Hypotekárna kalkulačka

Virtuálna prehliadka

180 000 €
Ulica: Hontianske Nemce
Obec: Hontianske Nemce
Okres: Krupina
Kraj: Banskobystrický kraj
Druh: Domy
Typ: Predaj
Typ domu: Rodinný dom
Iné:

Ing. Marek Rojík - Smart Reality Service

Lokalita: Zvolen, Banská Bystrica, Špania Dolina, Krupina, Detva, Žiar nad Hronom, Banská Štiavnica
  • Česky
  • Slovensky
  • English

Radi Vám poradíme