Používame cookies

Súbory cookie a ďalšie technológie sledovania používame na zlepšenie vášho zážitku z prehliadania našich webových stránok, na to, aby sme vám zobrazovali prispôsobený obsah a cielené reklamy, na analýzu návštevnosti našich webových stránok a na pochopenie toho, odkiaľ naši návštevníci prichádzajú. Viac info

Na prenájom, 2i byt s balkónom v centre Zvolena, Kubániho

Popis nehnuteľnosti

Zdieľať na Facebooku

Na prenájom: Úplne nový 2-izbový byt s balkónom, pivnicou a parkovaním

Zvolen – Kubániho ulica | centrum | novostavba | prvý nájomník

Ponúkame na prenájom úplne nový, ešte neobývaný 2-izbový byt v novostavbe, nachádzajúci sa na Kubániho ulici v centre mesta Zvolen, v bezprostrednej blízkosti obchodného centra Europa.
Byt je voľný ihneď a vhodný na dlhodobý prenájom (min. 1 rok), ideálny pre jednotlivca, pár, menšiu rodinu, ale aj firemného klienta.

📌 Záujem o obhliadku?
Pre účasť na obhliadke je potrebné vyplniť krátky dotazník:
👉 https://forms.gle/jD2U7bSc3BuYBXmV8
Na základe vyplnenia Vás budeme kontaktovať.
Bez vyplnenia dotazníka nebude možné zúčastniť sa obhliadky.
Najbližší termín obhliadok: piatok 6. 2. 2026

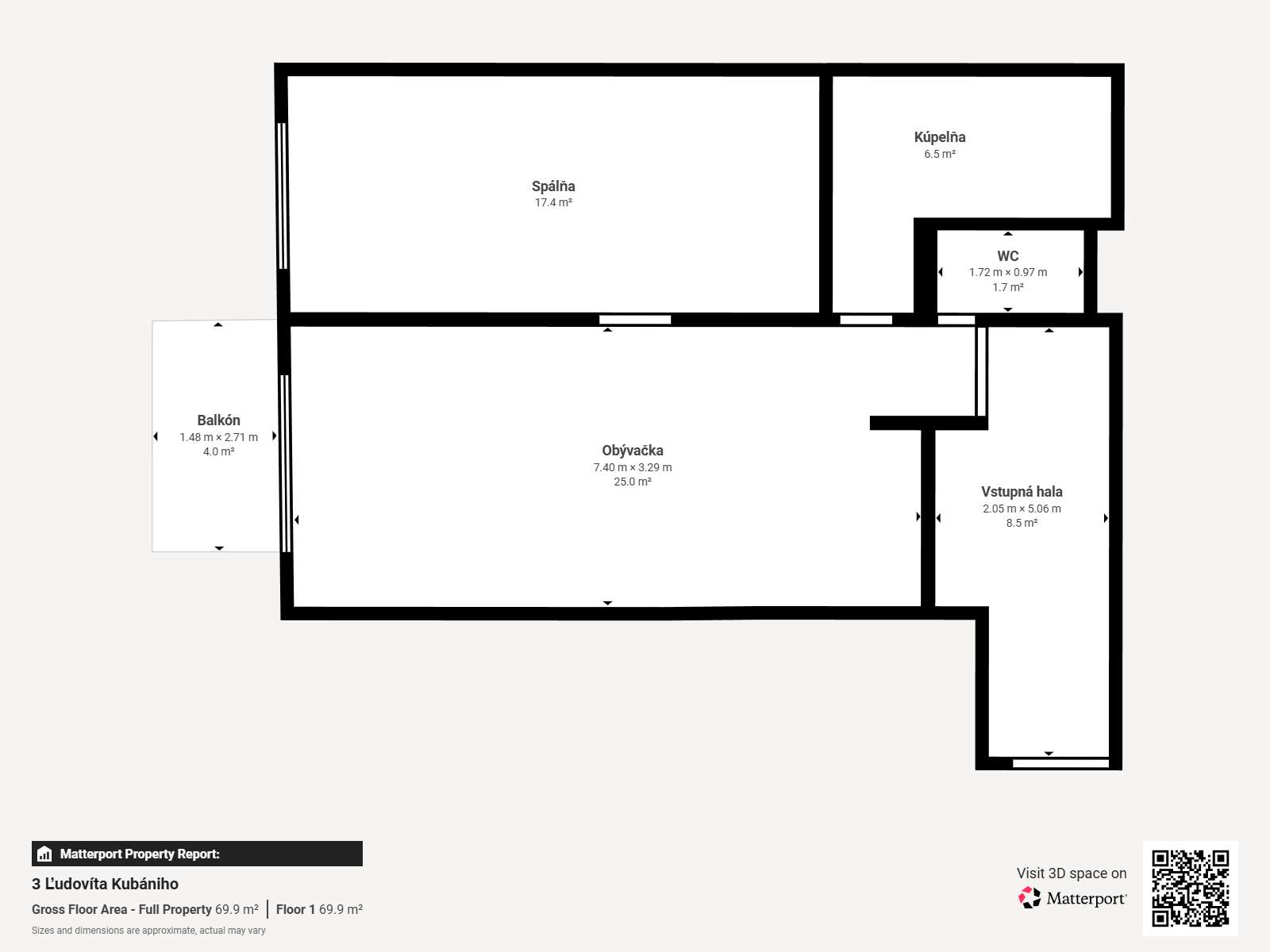
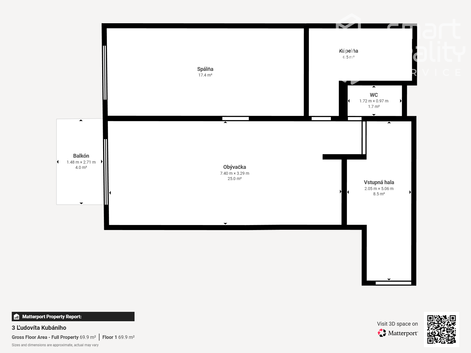
🏠 BYT

Byt má celkovú výmeru 63 m² vrátane balkóna a nachádza sa na 2. nadzemnom podlaží moderného bytového domu s výťahom.

Dispozičné riešenie:

obývacia izba s výstupom na balkón

samostatná spálňa

kuchynská časť s novou kuchynskou linkou

kúpeľňa s vaňou

samostatné WC

Balkón s výmerou 4 m² je orientovaný do tichého vnútrobloku s detským ihriskom, čo zaručuje pokojné bývanie aj v centre mesta.

Byt sa prenajíma zariadený – presne podľa fotografií.
V prípade potreby je majiteľ pripravený doplniť zariadenie podľa dohody.

Vybavenie bytu:

sedacia súprava

kuchynská linka so vstavanými spotrebičmi

jedálenský pult

chladnička, mikrovlnná rúra

elektrická rúra, indukčná varná doska

V byte je predpríprava na optický internet (Orange, Telekom, Detronics). Poskytovateľa si vyberá a uhrádza nájomca.

K bytu prislúcha pivnica – zahrnutá v cene nájmu.

📍 LOKALITA

Kubániho ulica ponúka komfort mestského bývania bez kompromisov:

Námestie: cca 2 minúty pešo

OC Europa: hneď vedľa domu

rýchly výjazd na diaľnicu smer Banská Bystrica / Bratislava

Veľkou výhodou je vlastné vonkajšie parkovacie miesto, ktoré je v centre mesta výrazným benefitom.

🏢 BYTOVÝ DOM

Bytový dom je 5-poschodová novostavba s výťahom.
Železobetónová konštrukcia zabezpečuje kvalitu, dlhú životnosť a vysoký štandard bývania.

💶 PODMIENKY NÁJMU

Mesačné nájomné: 800 €
(650 € nájom + 150 € energie)

Internet nie je zahrnutý v cene

V cene je zahrnuté:

vonkajšie parkovacie miesto

pivnica

Platobné podmienky:

nájomné splatné vždy do 20. dňa predchádzajúceho mesiaca

pri podpise zmluvy:

vratný depozit 1 600 € (2-mesačný nájom)

nájomné za prvý mesiac 800 €

pri nástupe v priebehu mesiaca sa účtuje alikvotná časť

Podmienky prenájmu:

minimálna doba nájmu: 1 rok

bez domácich zvierat

maximálne 2 dospelé osoby a 1 dieťa

vhodné aj pre firemných klientov

✨ Zaujala Vás táto ponuka?
Neváhajte, vyplňte dotazník a radi Vás privítame na osobnej obhliadke.

Vlastnosti

Status:
aktívne
Vlastníctvo:
osobné
Úžitková plocha:
59 m2
Zastavaná plocha:
59 m2
Podlahová plocha:
59 m2
Stav:
novostavba
Počet izieb:
2
Typ budovy:
zosilnený betón
Balkón:
áno
Pivnica:
áno
Výťah:
áno
Rok výstavby:
2025
Rok kolaudácie:
2025
Počet poschodí od prízemia vyššie:
5
Pozícia:
vyššie poschodie
Poschodie:
2
Celková plocha:
63 m2
Plocha balkóna:
4 m2
Počet balkónov:
1
Pivnica plocha:
3 m2
Počet pivníc:
1
Počet vonkajších parkovacích miest:
1
Orientácia:
východ
Inžinierske siete:
áno
Voda:
áno
Elektrika:
áno
Kanalizácia:
áno
Vykurovanie - centrálne:
áno
Internet:
áno
Káblová TV:
áno
Optická sieť:
áno

Virtuálna prehliadka

800 €/mesiac vrátane energií a parkovacieho miesta
Ulica: Ľudovíta Kubániho
Obec: Zvolen
Okres: Zvolen
Kraj: Banskobystrický kraj
Druh: Byty
Typ: Prenájom
Typ bytu: 2-izbový byt
Iné:

Ing. Marek Rojík - Smart Reality Service

Lokalita: Zvolen, Banská Bystrica, Špania Dolina, Krupina, Detva, Žiar nad Hronom, Banská Štiavnica
  • Česky
  • Slovensky
  • English

Radi Vám poradíme